Nokyo Community Hub
Arroyo Grande, California
CCA
2023
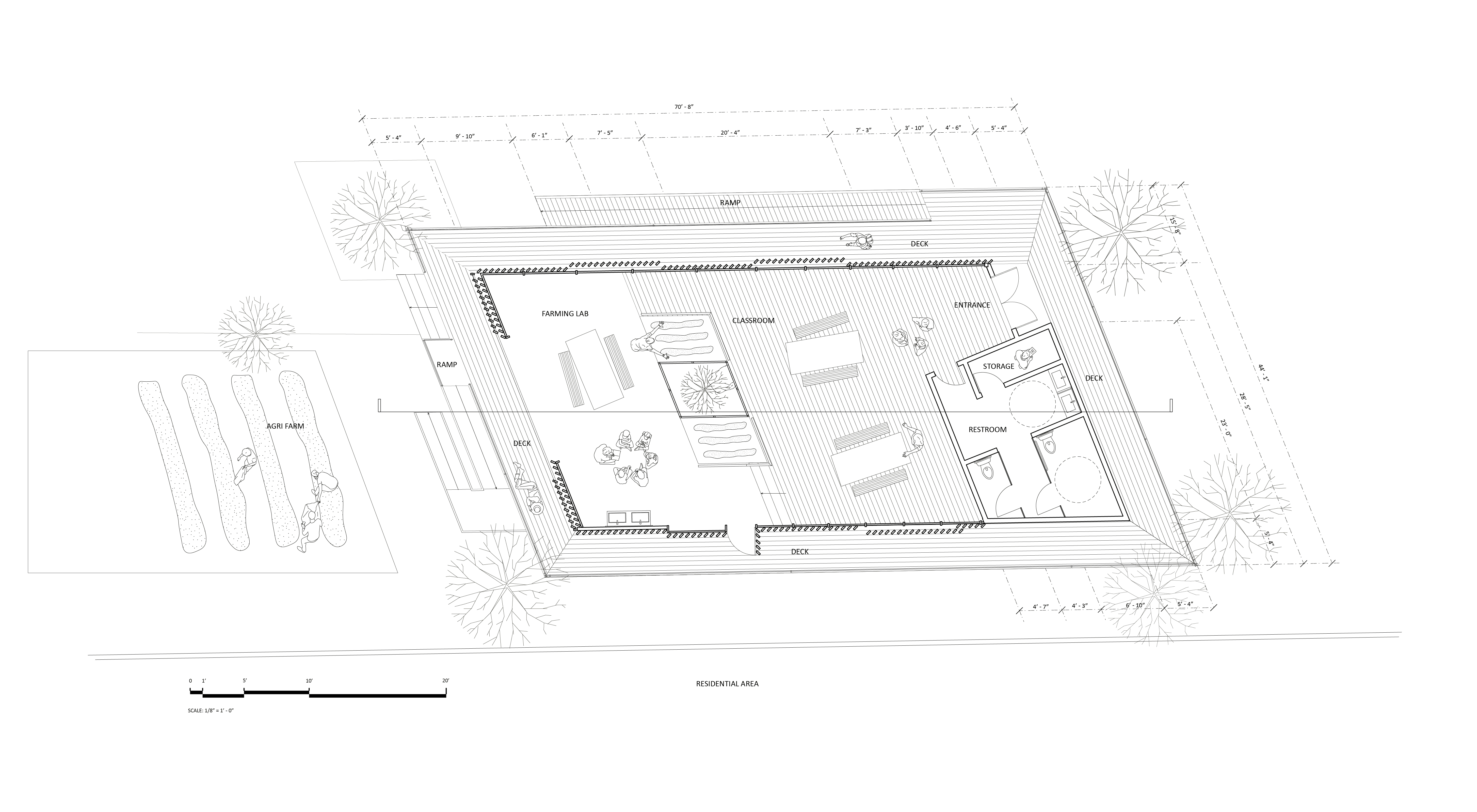
Our proposal for the studio in Arroyo Grande is to confront the pressure imposed by market forces on the land, which has undeniable economic value, by infusing it back with cultural, social, and ecological value of equal importance. We see the importance of creating a memorial and gathering space that honors the Japanese traditions and American seasonal celebrations. Interwoven with commercial, communal, and educational uses, this project reflects families’ connection to land and how it has allowed them to “give back” to the community.
Boston | New York | San Francisco









